|
|
Ohio Medical Continuous On-Demand Compressed Air Systems with Dessicant Dryers
Ohio Medical offers an array of complete medical air systems
Features:
- Oil-Less Air Compressors
- NFPA 99 Compliant
- UL-listed Electrical Control Panel
- Available in Simplex, Duplex, Triplex and Quadruplex
- Tank, Base and Stack-Mounted Configurations Availble
- Medical and Labaoratory Configurations
- Warranty: 30 / 24 Months
Tank mount systems can be configured as a single assembly, with dryers and other NFPA required components. Simplex systems, with refrigerated dryers, are also offered for lab applications.
Multiplex systems are available in modular stack arrangements, such as the space-saving triplex design pictured above. Dessicant dryers feature Dewpoint Dependent Switching to minimize the need for purge air.
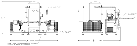
 Ohio Medical Air Compressor Dimensional Drawing (click to enlarge)
| Reciprocal Piston Air System Dimensions & Performance: |
| Design Capacity SCFM @ 50 psig each |
Capacity of each pump* |
System Configuration |
HP |
Tank Size (gallons) |
No. of Motors |
Length (A) |
Width (B) |
Height (C) |
Weight |
System Model No. |
| 8.2 |
8.2 |
Tank-Mounted Duplex |
2 |
120 |
2 |
78 |
47 |
69 |
1900 |
A200B-T2-DD |
| 12 |
12 |
Tank Mounted Duplex |
3 |
120 |
2 |
78 |
47 |
69 |
2000 |
A300B-T2-DD |
| 23 |
23 |
Tank Mounted Duplex |
5 |
120 |
2 |
80 |
50 |
77 |
2300 |
A500B-T2-DD |
| 32 |
32 |
Tank Mounted Duplex |
7.5 |
120 |
2 |
81 |
52 |
77 |
3000 |
A750B-T2-DD |
| 38 |
38 |
Tank Mounted Duplex |
10 |
120 |
2 |
67.5 |
105 |
85 |
3900 |
A1000B-T2-DD |
| 60 |
60 |
Stack Mounted Duplex |
15 |
120 |
2 |
69.5 |
126 |
92 |
5400 |
A1500B-ST2-DD |
| 64 |
32 |
Stack Mounted Triplex |
7.5 |
120 |
3 |
107.5 |
112 |
85 |
5100 |
A750B-ST3-DD |
| 71.5 |
71.5 |
Stack Mounted Duplex |
20 |
120 |
2 |
69.5 |
126 |
92 |
5900 |
A2000B-ST2-DD |
| 76 |
38 |
Stack Mounted Triplex |
10 |
120 |
3 |
107.5 |
112 |
85 |
5350 |
A1000B-ST3-DD |
| 96 |
32 |
Stack Mounted Quadruplex |
7.5 |
240 |
4 |
116 |
116 |
85 |
7000 |
A750B-ST4-DD |
| 109 |
109 |
Base Mounted Duplex |
25 |
120 |
2 |
139.5 |
125 |
80 |
6300 |
A2500B-B2-DD |
| 120 |
60 |
Stack Mounted Triplex |
15 |
240 |
3 |
120 |
128 |
90 |
7600 |
A1500B-ST3-DD |
| 118 |
118 |
Base Mounted Duplex |
30 |
120 |
2 |
139.5 |
125 |
80 |
6300 |
A3000B-B2-DD |
| 114 |
38 |
Stack Mounted Quadruplex |
10 |
240 |
4 |
116 |
116 |
85 |
7350 |
A1000B-ST4-DD |
| 143 |
71.5 |
Stack Mounted Triplex |
20 |
240 |
3 |
120 |
132 |
90 |
8200 |
A2000B-ST3-DD |
| 214.5 |
71.5 |
Stack Mounted Quadruplex |
20 |
240 |
4 |
120 |
145 |
90 |
11500 |
A2000B-ST4-DD |
| 218 |
109 |
Base Mounted Triplex |
25 |
240 |
3 |
204.5 |
142 |
95 |
9000 |
A2500B-B3-DD |
| 236 |
118 |
Base Mounted Triplex |
30 |
240 |
3 |
204.5 |
142 |
95 |
9000 |
A3000B-B3-DD |
| 180 |
60 |
Stack Mounted Quadruplex |
15 |
240 |
4 |
120 |
145 |
90 |
10600 |
A1500B-ST4-DD |
* Multiplex systems include one pump in reserve.
 Ohio Medical Compressed Air System, Base Mounted Duplex Configuration
 Ohio Medical Compressed Air System, Stack Mounted Duplex Configuration
|
|
Hours of Operation:
Monday – Friday, 8:30 a.m. – 5 p.m. EST
|
| |